CORPORATE HEAD OFFICE
Interior Design for a Corporate Head Office - 65 Workstations
Montreal / 2024 / Project Manager in Interior Design / Sid Lee Architecture
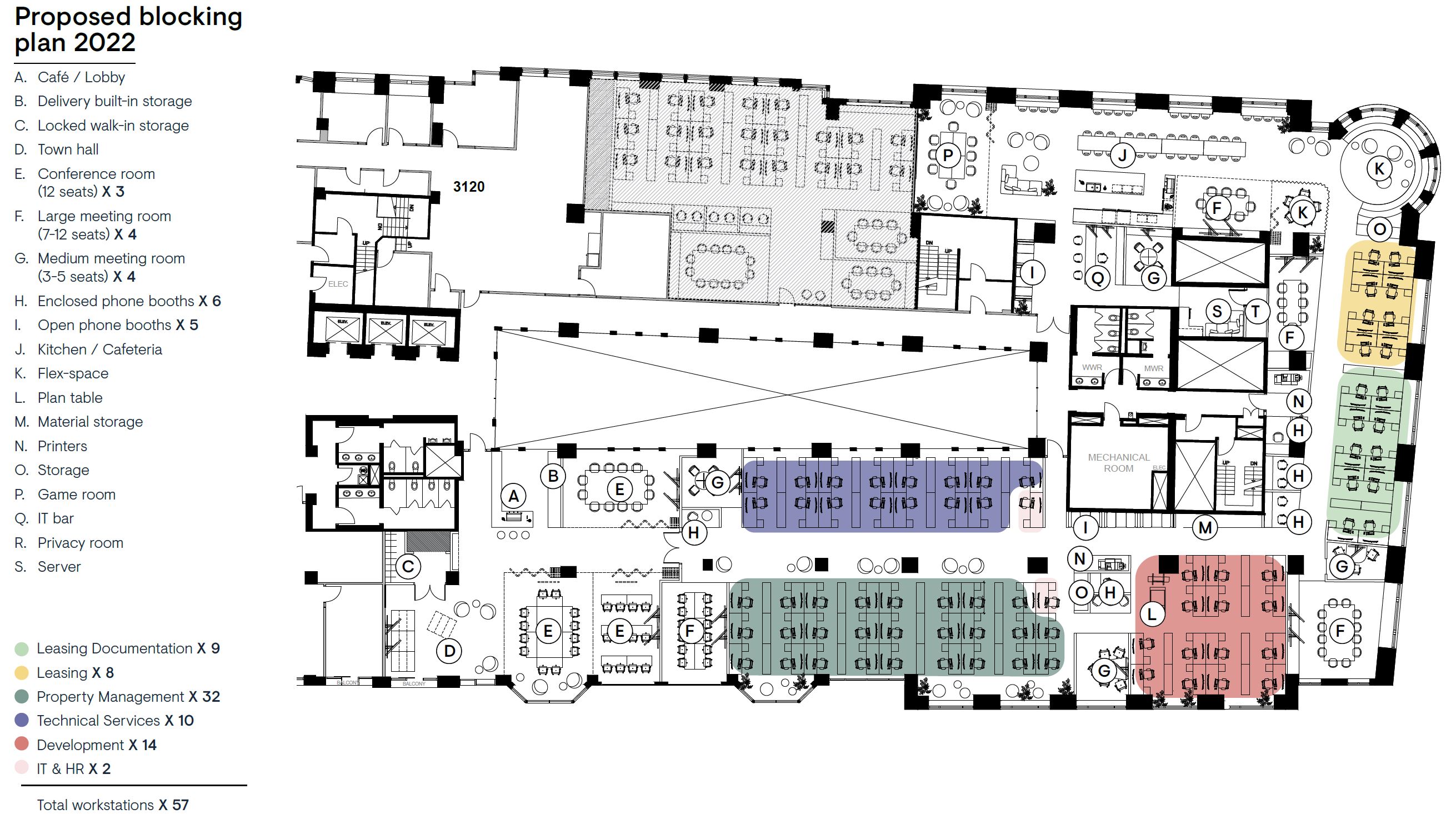
The project consisted of developping the interior design and interior architecture of an HQ office for a pan-canadian property management company.
- Project Type: Interior Architecture, Corporate
- Project Location: Downtown Montréal
- Completion: 2024
- 
Surface area: 13,000 square feet approx. 
- Client: Allied REIT
Scope of work:
- 
Scope of work: 
- Interior design & layout
- Preliminary plans & millwork sketches
- FF&E specifications
- Management of the interior designer team (test fits, interior design development, custom millwork design, FF&E selection)
- Budget estimation and costing
- Coordination with Client, Engineers, Suppliers, and General Contractor
Photos: Alex Lepage.

 
 
 
 

 
 
 

 
 
Existing Site
 
 
Layout

Inspiration and Materiality

 
Custom-Designed Workstations
3d Simulations

 
 
 

 
 

 
