GELCARE Warehouse
A Warehouse and Office for an E-Com Start-Up
Montréal / 2 Phases 2020 & 2021 / Environmental & Experiential Designer Lead / Freelance

Le Manoir is first and foremost known as a luxury nail-art and skin treatment salon based in Montreal (the salon having been designed by yours truly: see photos here). With its growing brand recognition on the social media, the owner developed an online shop for complimentary products in nail care (GELCARE), self-care, and jewellery.
- Project Type: Interior Design for Retail Brand Headquarters & Warehouse
- Project Location: Montréal
- Completion: 2 phases 2020 & 2021
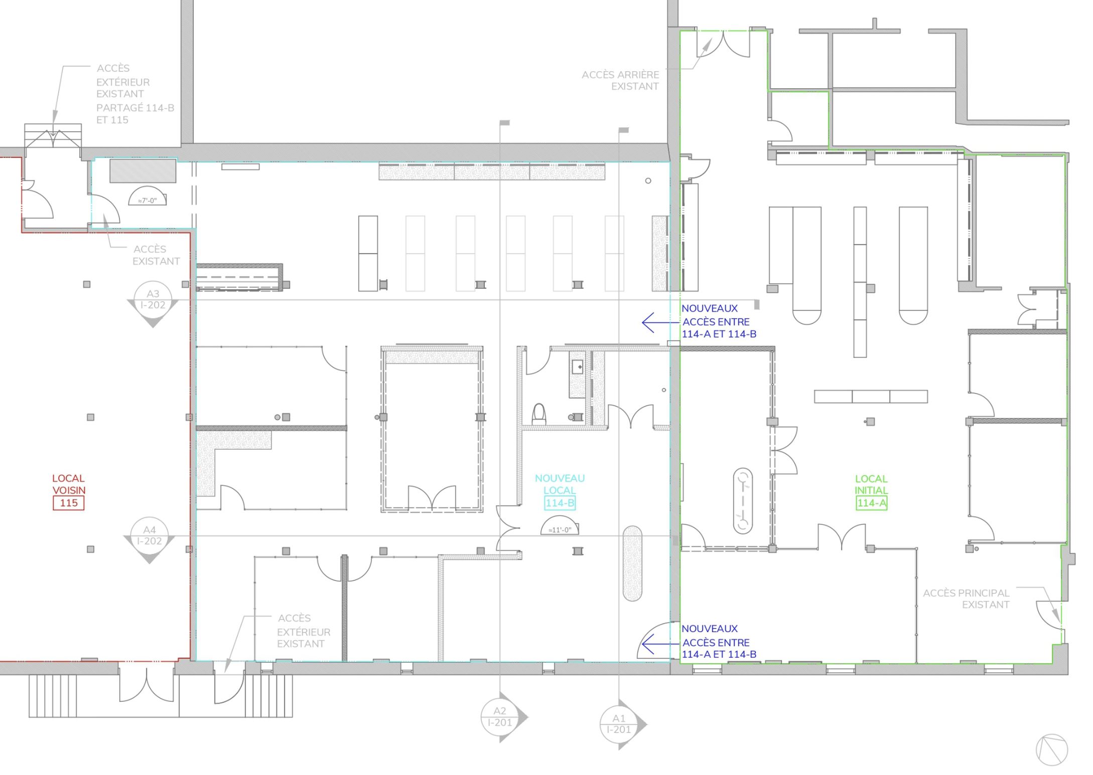
- Surface area: 5,200 sq. ft.
- Client: GELCARE
The interior design is an updated continuation of the salon: a white, clean, and well-lit background, with a balance punch of colours. The use of glass partitions, floor-to-ceiling see-through curtain, and frosted acrylic gives the space an open and soft feeling. Details such as greenery, retro furnitures, and colourful terrazzo add quirkyness and personality.

Scope of work:
- 
Client management
- 
Coordination with external parties including general contractor, electrician, landlord and suppliers
- 
Creative direction for interior design (moodboard, concept, flow/consumer journey, layout)
- 
FF&E specification
- 
Construction plans for tender, permit, and execution
- Conceptual and technical dossiers for custom-design installation and millwork
Photos by Maxime Roz.

 
 
 
 
 



 
 
 
 
 
 

 
 
 
 
Base Building
Floor finish and Light fixtures had to be kept as is.

 
 
Some Technical Assets
